メープルリンク壱番館 204号室

 

  家賃 57,500円/月   共益費 7,500円/月   初期費用 25.000円(税別)      

                    

  水道料  2.500~3.000円/月    保証会社加入費  実費/年     


   ※1 水道料は、1人で入居される場合は2.500円、2人以上で入居される場合は3.000円の固定料金になります。
      ただし、メーター検針で既定の負担額を越える実費が発生した場合は差額分を追徴します。
   ※2 保険会社加入費は、時期により変動するので、入居時に確認してください。1年に1回の更新があります。

                    

                      


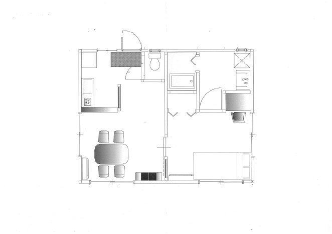
キッチン

ダイニング



洋室

サニタリーコーナー



バスルーム

トイレ




 
メープルリンク壱番館に戻る

お問い合わせ
株式会社オリエンタルプロセス 06-6717-3565