Maple Link Ⅰ #302

                                        

 Rent \52,000/month Common service expence \7,000/month Water rate \2,500-\3,000/month
 Inisial cost(cleanning fee & Key exchange cost) \25,000 Guarantee Company contract required
 

                    


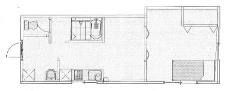
Kitchen

Dining room



Bed room

Wash room





Bath room

Toilet




 
Back to the page of Maple Link Ⅰ

Feel free to ask us
Oriental Process., Co Ltd   
tel: 080-1422-4679
E-mail: jakee.sgn@gmail.com